Однокомнатная квартира 44,20 м2 по ул. Лесопарковая 20 за 6440000 руб.

Однокомнатная квартира по ул. Лесопарковая, 20 в Тюмени
Цена 6 440 000 р. (145 701 р./м2)
Подать заявку на ипотеку
Адрес Лесопарковая, 20
Этаж 6/24
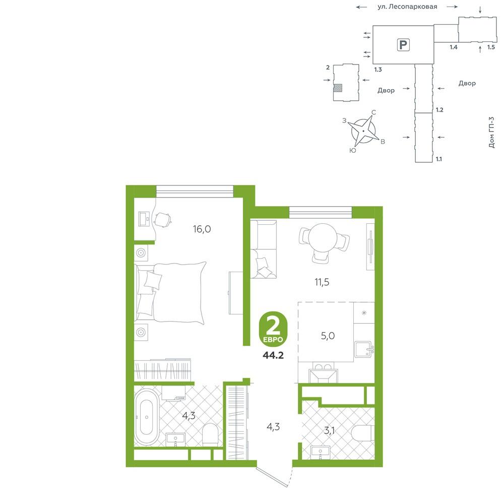
Площадь общая 44,2 м2, жилая 16 м2, кухни 16,5 м2
Кол-во комнат Однокомнатная
id:48067. Квартира располагается в ГК «Чистые Пруды» от «Паритет девелопмент». Это флагманский проект компании в Тюмени. <br>Расположение вдали от шумных улиц и оживленного центра создает ощущение жизни на природе и окружает тишиной и спокойствием. Есть вся необходимая социальная и коммерческая инфраструктура: магазины и сфера услуг на первых этажах. Школы, сады, поликлиника, парки в шаговой доступности.<br>Квартал строится в районе Новой Лесобазы. Рядом выезд на объездную, что существенно экономит время. Поездка до центра города на автомобиле занимает 15-20 минут.<br>Городские кварталы «Чистые Пруды»сформирован из домов переменной этажности и многоуровневых паркингов. Ввод 1 очереди строительства запланирован на II кв. 2028 года. <br>Всё благоустройство квартала представлено двумя функциональными зонами: приватная внутри дворовая и общественная. Каждый закрытый двор имеет выход на единую променадную зону - бульвар.<br>Концепция благоустройства основана на принципе модульности, что формирует основную идею приватности. Приватность проекта подчеркивает его особенный климат внутри. Модульное благоустройство позволит максимально эффективно использовать пространство двора и удовлетворить потребности различных категорий жителей.<br>В квартирах базово выполнена улучшенная черновая отделка, которая включает в себя: выровненные стены, стяжка пола с шумоизоляцией, горизонтальная разводка отопления, установлены счетчики с телеметрией, окна с 5-камерным профилем и надежные входные двери.<br>При желании можно добавить ремонт от застройщика и включить его в стоимость ипотеки, что позволит сэкономить на стройматериалах и переехать сразу после получения ключей. <br>Характеристики квартиры:<br>этаж - 6<br>количество комнат - 2<br>номер помещения - 52<br>площадь квартиры - 44,2 кв.м<br>Гармоничные пропорции и большие окна наполняют пространство светом, создавая уютную атмосферу. Умное зонирование позволяет удобно организовать как рабочую, так и жилую зоны, что особенно важно для современных жителей. Санузел спроектирован с учетом всех потребностей: здесь есть ванна и место для стиральной машины. Каждый метр квартиры используется с максимальной эффективностью, что делает эту планировку отличным выбором для тех, кто ценит комфорт и удобство.
Описание дома
Этажность дома 24
Объявление № 23234132
Дата подачи:
6 сентября 2025 г. 0:39
Дата обновления:
6 сентября 2025 г. 0:39
Просмотров 39 Хотите продать быстрее?

Продавец
Агентство недвижимости:
Карен Бабаджанян
email: bks668@mail.ru
Показать номер телефона
Пожаловаться
Комментарии:
Добавить