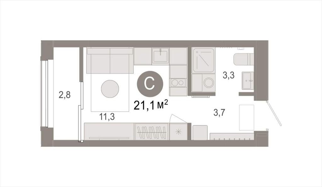
квартира 21,14 м2 по ул. Томская 52к2 за 4160000 руб.

квартира по ул. Томская, 52к2 в Тюмени
Цена 4 160 000 р. (196 783 р./м2)
Подать заявку на ипотеку
Адрес Томская, 52к2
Этаж 14/17
Площадь общая 21,14 м2, жилая 9,23 м2, кухни 5,82 м2
Студия в Октябрьском на Туре. Особенности планировки: тёплая лоджия, предчистовая отделка, ипотека с пв от 0%. № квартиры в нашей базе: ОКТ09-Ж1.14.6.
Описание дома
Этажность дома 17
Объявление № 22441421
Дата подачи:
3 июня 2025 г. 9:50
Дата обновления:
3 июня 2025 г. 9:39
Просмотров 30 Хотите продать быстрее?

Продавец
Отдел продаж
Показать номер телефона
Пожаловаться
Комментарии:
Добавить