квартира 21,14 м2 по ул. Томская 52к2 за 4460000 руб.

квартира по ул. Томская, 52к2 в Тюмени
Цена 4 460 000 р. (210 974 р./м2)
Подать заявку на ипотеку
Адрес Томская, 52к2
Этаж 14/17
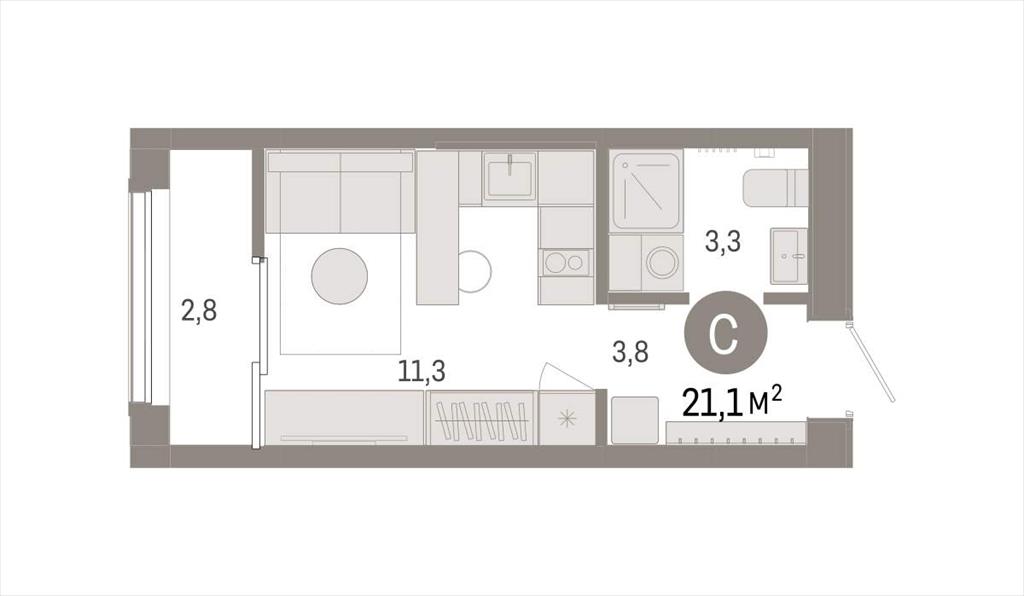
Площадь общая 21,14 м2, жилая 9,28 м2, кухни 5,77 м2
Студия в Октябрьском на Туре. Особенности планировки: тёплая лоджия, ремонт в подарок. Проект расположен на берегу реки, в одном из самых живописных и экологичных районов Тюмени. За последние годы облик района изменился. По соседству с индивидуальной застройкой выросли многоквартирные дома. При проектировании «Октябрьского на Туре» нашей приоритетной задачей стало сохранение природного ландшафта: мы постарались деликатно вписать в него современную архитектуру. Одной из достопримечательностей квартала станет парк на Туре - здесь появится зеленая зона протяженностью около 6 километров для пеших и велопрогулок. По мастер-плану здесь будет восемь домов. Ядро застройки составляют замкнутые кварталы переменной этажности. Их высотность понижается по мере приближения к реке. На углах участка мы разместили башни-доминанты. Смысловая ось квартала - широкая главная улица с высаженными вдоль неё высокими деревьями. Они создают тень и работают как шумо- и пылезащитные экраны. Это место сосредоточения основных пешеходных и транспортных потоков, на сторону которых мы ориентировали большинство коммерческих помещений. Отсюда жители могут свернуть на тихие соседские улицы и попасть на внутриквартальную площадь - ещё одну точку притяжения. Квартал удачно расположен с точки зрения дорожной инфраструктуры. На автомобиле путь до центра города составит 15 минут. Добраться до набережной и главных тюменских достопримечательностей можно и на общественном транспорте. В пешей доступности находится автобусная остановка. Входы в подъезды мы сделали прозрачными и расположили их на уровне земли. Домофон разместили в тёплом тамбуре, чтобы ни вам, ни вашим гостям не пришлось ждать открытия двери на улице. Чистоту в местах общего пользования поддержит трёхступенчатая система грязезащиты. Она состоит из решеток и ковров, забирающих на себя влагу и мелкий мусор. Интерьерную концепцию мы построили на сочетании контрастов. Светлого пола и стен, выполненных в одной гамме с фасадами, и тёмных элементов отделки: плинтусов, карнизов, стеллажей и навигации. Самостоятельным элементом декора мы сделали почтовые ящики, а главной изюминкой проекта - большие зеркала. № квартиры в нашей базе: ОКТ-08-6-6.14.6.
Описание дома
Этажность дома 17
Объявление № 22402366
Дата подачи:
31 мая 2025 г. 4:52
Дата обновления:
31 мая 2025 г. 1:50
Просмотров 26 Хотите продать быстрее?

Продавец
Отдел продаж
Показать номер телефона
Пожаловаться
Комментарии:
Добавить