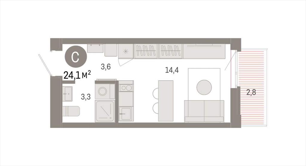
квартира 24,14 м2 по ул. Республики 203к1 за 4230000 руб.

квартира по ул. Республики, 203к1 в Тюмени
Цена 4 230 000 р. (175 228 р./м2)
Подать заявку на ипотеку
Адрес Республики, 203к1
Этаж 6/9
Площадь общая 24,14 м2, жилая 13,5 м2, кухни 0 м2
Студия в жилом районе «Республики 205». Особенности планировки: предчистовая отделка, балкон. № квартиры в нашей базе: РСП03.1-Ж3.6. 4.
Описание дома
Этажность дома 9
Объявление № 22396925
Дата подачи:
30 мая 2025 г. 12:23
Дата обновления:
30 мая 2025 г. 9:34
Просмотров 30 Хотите продать быстрее?

Продавец
Отдел продаж
Показать номер телефона
Пожаловаться
Комментарии:
Добавить