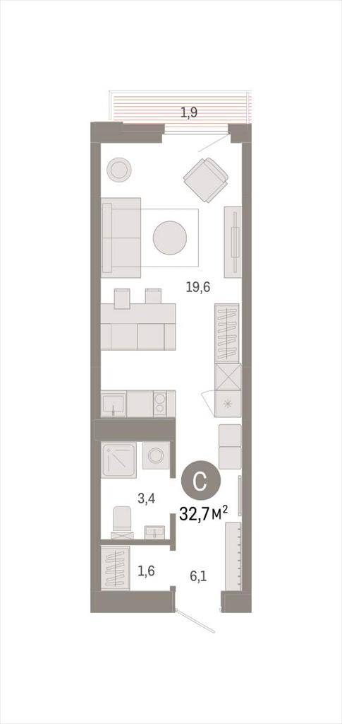
квартира 32,72 м2 по ул. Мысовская 26к1 за 6190000 руб.

квартира по ул. Мысовская, 26к1 в Тюмени
Цена 6 190 000 р. (189 181 р./м2)
Подать заявку на ипотеку
Адрес Мысовская, 26к1
Этаж 11/25
Площадь общая 32,72 м2, жилая 19,2 м2, кухни 8,15 м2
Продаётся с паркингом. Студия в жилом районе «Зарека». Особенности планировки: гардеробная, предчистовая отделка, балкон. № квартиры в нашей базе: ЗРК05.1-Ж1.11.9.
Описание дома
Этажность дома 25
Объявление № 22384767
Дата подачи:
29 мая 2025 г. 4:32
Дата обновления:
29 мая 2025 г. 1:44
Просмотров 32 Хотите продать быстрее?

Продавец
Отдел продаж
Показать номер телефона
Пожаловаться
Комментарии:
Добавить