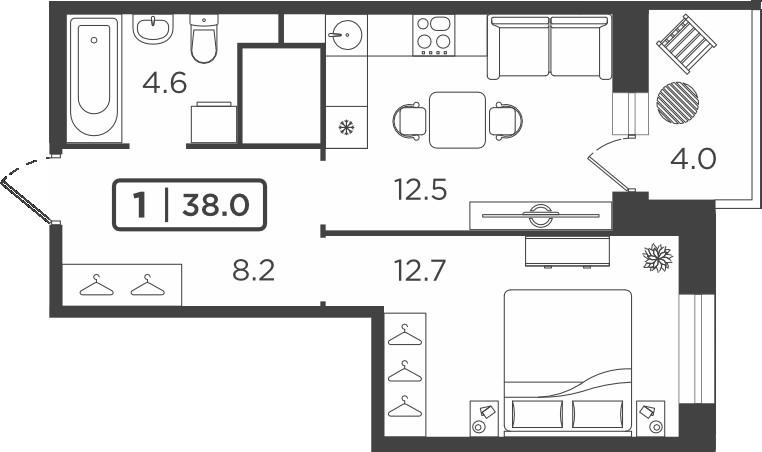
Однокомнатная квартира 38,00 м2 по ул. Мельникайте 2к17 за 4200000 руб.

Однокомнатная квартира по ул. Мельникайте, 2к17 в Тюмени
Цена 4 200 000 р. (110 526 р./м2)
Подать заявку на ипотеку
Адрес Мельникайте, 2к17
Этаж 24/25
Площадь общая 38 м2, жилая 0 м2, кухни 0 м2
Кол-во комнат Однокомнатная
id:27837. Жилой комплекс &laquo;Горизонт&raquo; в Тюмени: комфорт и уют для вашей семьи<br /> <br /> Жилой комплекс &laquo;Горизонт&raquo; &mdash; это идеальное место для тех, кто ценит комфорт, уют и безопасность. Он расположен в одном из самых удобных районов города, что позволяет наслаждаться всеми преимуществами городской жизни, не отказываясь от спокойствия и тишины.<br /> <br /> Застройщик ЖК &laquo;Горизонт&raquo; позаботился о том, чтобы каждый житель комплекса чувствовал себя комфортно и уверенно. Здесь вы найдёте всё необходимое для счастливой и беззаботной жизни: современные квартиры с удобной планировкой, благоустроенные дворы с детскими площадками и зелёными зонами, а также развитую инфраструктуру.<br /> <br /> На официальном сайте жилого комплекса вы сможете узнать всю необходимую информацию о квартирах, застройщике и условиях покупки. А также посмотреть расположение ЖК на карте города и прочитать отзывы жителей.<br /> <br /> Не упустите свой шанс стать обладателем уютной квартиры в жилом комплексе &laquo;Горизонт&raquo;!
Описание дома
Этажность дома 25
Объявление № 21300347
Дата подачи:
21 февраля 2025 г. 13:23
Дата обновления:
21 февраля 2025 г. 13:23
Просмотров 35 Хотите продать быстрее?

Продавец
Агентство недвижимости:
Айказ Хазаян
email: 998892@mail.ru
Показать номер телефона
Пожаловаться
Комментарии:
Добавить