Трехкомнатная квартира 106,09 м2 по ул. ул. Краснооктябрьская 4, корпус 2 за 11010000 руб.

Трехкомнатная квартира по ул. ул. Краснооктябрьская, 4, корпус 2 в Тюмени
Цена 11 010 000 р. (103 780 р./м2)
Подать заявку на ипотеку
Адрес ул. Краснооктябрьская, 4, корпус 2
Этаж 6/7
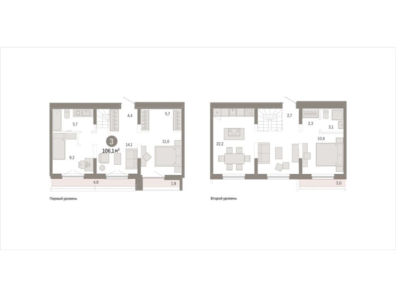
Площадь общая 106,09 м2, жилая 30,73 м2, кухни 41,9 м2
Кол-во комнат Трехкомнатная
id:30780. Двухуровневая квартира с кухней-гостиной и тремя спальнями в Октябрьском на Туре. Особенности планировки: двухуровневая, разнесённые спальни, свободная планировка, терраса на крыше. Проект расположен на берегу реки, в одном из самых живописных и экологичных районов Тюмени. За последние годы облик района изменился. По соседству с индивидуальной застройкой выросли многоквартирные дома. При проектировании «Октябрьского на Туре» нашей приоритетной задачей стало сохранение природного ландшафта: мы постарались деликатно вписать в него современную архитектуру. Одной из достопримечательностей квартала станет парк на Туре — здесь появится зеленая зона протяженностью около 6 километров для пеших и велопрогулок. По мастер-плану здесь будет восемь домов. Ядро застройки составляют замкнутые кварталы переменной этажности. Их высотность понижается по мере приближения к реке. На углах участка мы разместили башни-доминанты. Смысловая ось квартала — широкая главная улица с высаженными вдоль неё высокими деревьями. Они создают тень и работают как шумо- и пылезащитные экраны. Это место сосредоточения основных пешеходных и транспортных потоков, на сторону которых мы ориентировали большинство коммерческих помещений. Отсюда жители могут свернуть на тихие соседские улицы и попасть на внутриквартальную площадь — ещё одну точку притяжения. Квартал удачно расположен с точки зрения дорожной инфраструктуры. На автомобиле путь до центра города составит 15 минут. Добраться до набережной и главных тюменских достопримечательностей можно и на общественном транспорте. В пешей доступности находится автобусная остановка. Входы в подъезды мы сделали прозрачными и расположили их на уровне земли. Домофон разместили в тёплом тамбуре, чтобы ни вам, ни вашим гостям не пришлось ждать открытия двери на улице. Чистоту в местах общего пользования поддержит трёхступенчатая система грязезащиты. Она состоит из решеток и ковров, забирающих на себя влагу и мелкий мусор. Интерьерную концепцию мы построили на сочетании контрастов. Светлого пола и стен, выполненных в одной гамме с фасадами, и тёмных элементов отделки: плинтусов, карнизов, стеллажей и навигации. Самостоятельным элементом декора мы сделали почтовые ящики, а главной изюминкой проекта — большие зеркала. № квартиры в нашей базе: ОКТ-08-4-4.6.2.
Описание дома
Этажность дома 7
Объявление № 17192980
Дата подачи:
9 февраля 2024 г. 7:32
Дата обновления:
9 февраля 2024 г. 7:32
Просмотров 115 Хотите продать быстрее?

Продавец
Агентство недвижимости:
Эмиль Камилов
email: emil7775@mail.ru
Показать номер телефона
Пожаловаться
Комментарии:
Добавить