Однокомнатная квартира 59,57 м2 по ул. ул. Краснооктябрьская 4, корпус 2 за 7910000 руб.

Однокомнатная квартира по ул. ул. Краснооктябрьская, 4, корпус 2 в Тюмени
Цена 7 910 000 р. (132 785 р./м2)
Подать заявку на ипотеку
Адрес ул. Краснооктябрьская, 4, корпус 2
Этаж 2/9
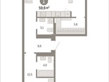
Площадь общая 59,57 м2, жилая 12,47 м2, кухни 25,75 м2
Кол-во комнат Однокомнатная
id:30754. Квартира с кухней-гостиной и одной спальней в Октябрьском на Туре. Особенности планировки: вид во двор, предчистовая отделка, мастер-спальня. Проект расположен на берегу реки, в одном из самых живописных и экологичных районов Тюмени. За последние годы облик района изменился. По соседству с индивидуальной застройкой выросли многоквартирные дома. При проектировании «Октябрьского на Туре» нашей приоритетной задачей стало сохранение природного ландшафта: мы постарались деликатно вписать в него современную архитектуру. Одной из достопримечательностей квартала станет парк на Туре — здесь появится зеленая зона протяженностью около 6 километров для пеших и велопрогулок. По мастер-плану здесь будет восемь домов. Ядро застройки составляют замкнутые кварталы переменной этажности. Их высотность понижается по мере приближения к реке. На углах участка мы разместили башни-доминанты. Смысловая ось квартала — широкая главная улица с высаженными вдоль неё высокими деревьями. Они создают тень и работают как шумо- и пылезащитные экраны. Это место сосредоточения основных пешеходных и транспортных потоков, на сторону которых мы ориентировали большинство коммерческих помещений. Отсюда жители могут свернуть на тихие соседские улицы и попасть на внутриквартальную площадь — ещё одну точку притяжения. Квартал удачно расположен с точки зрения дорожной инфраструктуры. На автомобиле путь до центра города составит 15 минут. Добраться до набережной и главных тюменских достопримечательностей можно и на общественном транспорте. В пешей доступности находится автобусная остановка. Входы в подъезды мы сделали прозрачными и расположили их на уровне земли. Домофон разместили в тёплом тамбуре, чтобы ни вам, ни вашим гостям не пришлось ждать открытия двери на улице. Чистоту в местах общего пользования поддержит трёхступенчатая система грязезащиты. Она состоит из решеток и ковров, забирающих на себя влагу и мелкий мусор. Интерьерную концепцию мы построили на сочетании контрастов. Светлого пола и стен, выполненных в одной гамме с фасадами, и тёмных элементов отделки: плинтусов, карнизов, стеллажей и навигации. Самостоятельным элементом декора мы сделали почтовые ящики, а главной изюминкой проекта — большие зеркала. № квартиры в нашей базе: ОКТ-08-1-1.2.2.
Описание дома
Этажность дома 9
Объявление № 17192954
Дата подачи:
9 февраля 2024 г. 7:32
Дата обновления:
9 февраля 2024 г. 7:32
Просмотров 115 Хотите продать быстрее?

Продавец
Агентство недвижимости:
Эмиль Камилов
email: emil7775@mail.ru
Показать номер телефона
Пожаловаться
Комментарии:
Добавить